UNFORBIDDEN MONOLITH :
거주하는 공유다리
차민재 / CHA MIN JAE
한양도성은 조선시대부터 현재까지 보존되어온 우리의 문화재이자 산책길이다. 과거 조선에는 방벽 그리고 백성들과의 위계라는 상징성을 지닌 기능이 완전한 요소였지만, 현재에 들어서서는 기능이 약화되었다. 그에 따라, 한양 도성의 영향으로 현재까지도 거주에 있어 불편함을 겪는 세대들이 만연하다고 한다. 한양도성이 존재하는 주거지가 비슷한 양상을 겪겠지만, 특히 장충체육관 -남산 구간의 신당2동 주거지에서는 그 정도가 심하다고 한다. 그 때문에 이번 프로젝트는 신당2동, 즉 다산동 일대를 사이트로 지정해 한양도성 인접 주거지역의 활성화에 대한 연구를 진행하려 한다.
이 프로젝트는 이미 ‘동대문 성곽공원 조성사업’을 통해 성곽을 오브제로 재연하는 반역사적 오점(ahistorical stigmata)을 남겨 놓고도 그것이 ‘역사’라고 믿게 하는 제도권의 역사주의에 대한 비판으로부터 출발한다.
이러한 한양도성의 복원은 도심과 남산을 연결하며 역사∙ 문화적으로 뿐만 아니라, 도시의 지형을 변화시켰다.
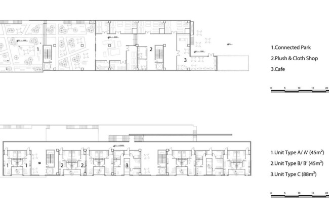
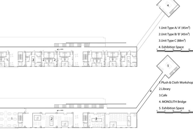
그러므로 이 프로젝트를 통해 기존 성곽복원으로 괴리된 다산동 주변을 성곽 둘레길로 편입하고, 주거 건축의 개입을 통해 복원으로 생긴 주변 도로와 맥락적 관계를 맺게 함으로써 현대적 복원의 실마리를 제공하고자 한다.





































