인하대학교 건축학부 졸업작품전 Multi-dimensional Park
해활천공
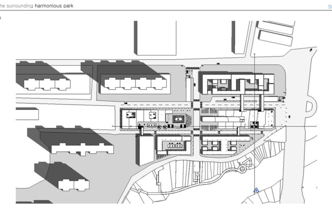
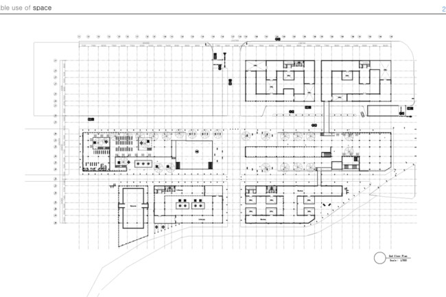
Most people still think about parks in two dimensions, but parks can also be built in three dimensions, like buildings. Break away from the previous green space design, only on the ground, innovative design of a three-dimensional green park. If the park is designed by designer to become a landmark building, it cannot be separated from water. Water always brings nimbus to the park.
The vertical park at the water’s edge became a landmark of the city.





































