ExerSight
공가빈
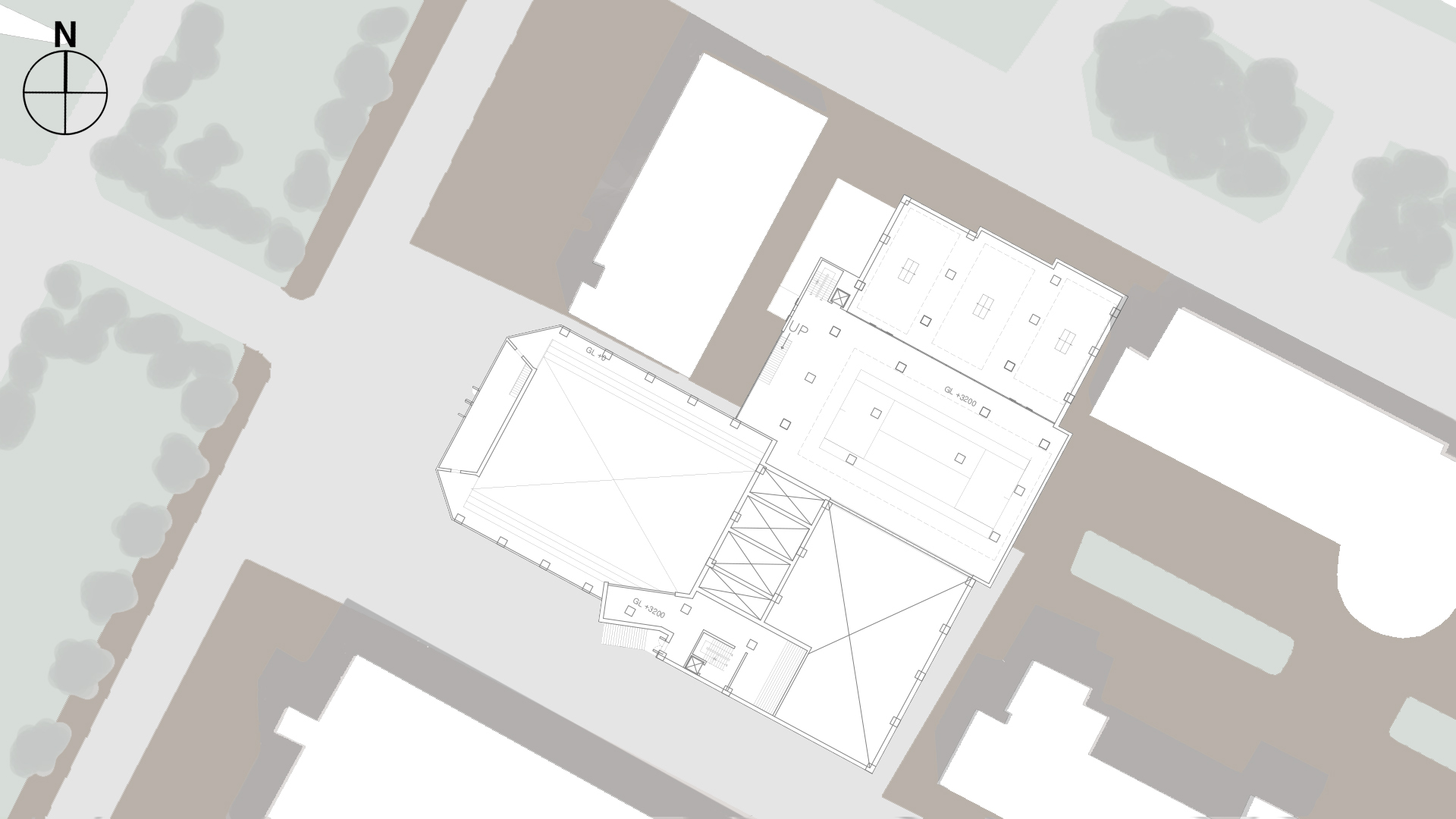
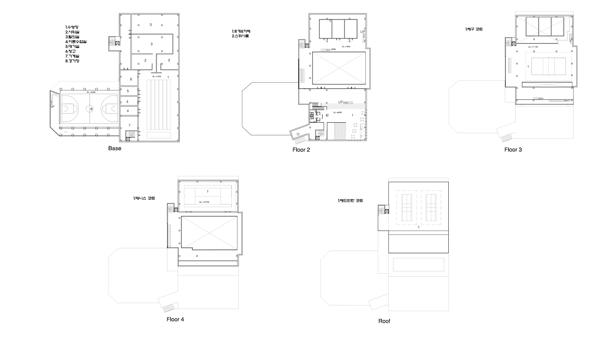
인하대학교에서 실내체육관이 적은 면적을 차지하고 있으며 활동이 제한되어있다는 문제점을 찾았다.
체육 경기를 진행하는 것 뿐만 아니라 많은 사람들이 다양한 체육활동을 즐길 수 있는 공간을 만드는 것을 목표로 삼았다. 또한 직접 참여하는 사람뿐만 아니라 다음 순서를 위해 기다리는 사람들, 참여 후에 휴식을 하는 사람, 그리고 단순히 관람을 하는 사람들까지 모두 가까이에서 시각적인 체험을 할 수 있는 공간이 필요하다고 판단했다.
따라서 이 프로젝트 ExerSight는 직접적인 활동<Exercise>와 시각적인 활동<Sight>이 함께 어우러지는 공간을 의미한다.






































