Empty House Series

Dolce Far niente

이주언

Empty House : Dolce far Niente

Lee Jueon

To you who live hard day by day, to you who are anxious even after a short break.

Don’t you need a space where you can put down your impatience and enjoy sweetness of lazy?

 

하루하루 열심히 살아가는 당신에게,  잠깐의 휴식에도 불안함을 내비치는 당신에게
떄로는 조급한 마음을 내려놓고 달콤한 게으름을 즐길 수 있는 공간이 필요하지 않을까?

 

 

도시의 과밀화와 공간의 결핍을 안고 살아가는 현대인들
사람의 부족, 빈집의 증가로 폐허가 되어가는 수많은 촌
‘빈집의 세컨드하우스로의 활용’이 두가지 사회적인 문제를 해결 할 수 있는 열쇠가 되지 않을까?
도시에서 못하는 것을 할 수 있는 공간, 유지관리가 쉬운 공간, 자연을 느낄 수 있는 공간, 공간이 있는 공간
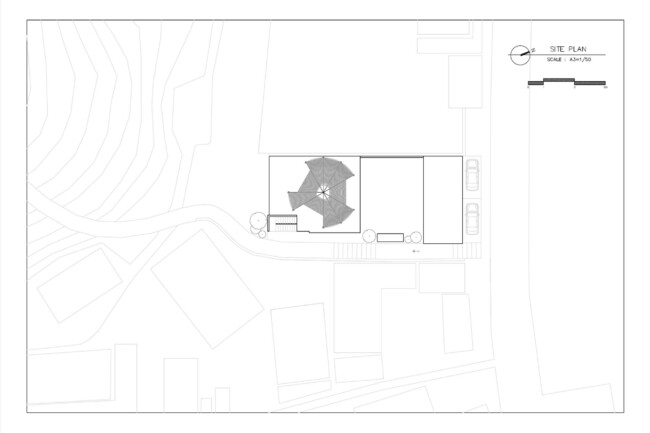
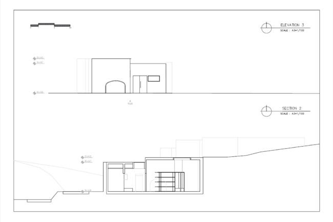
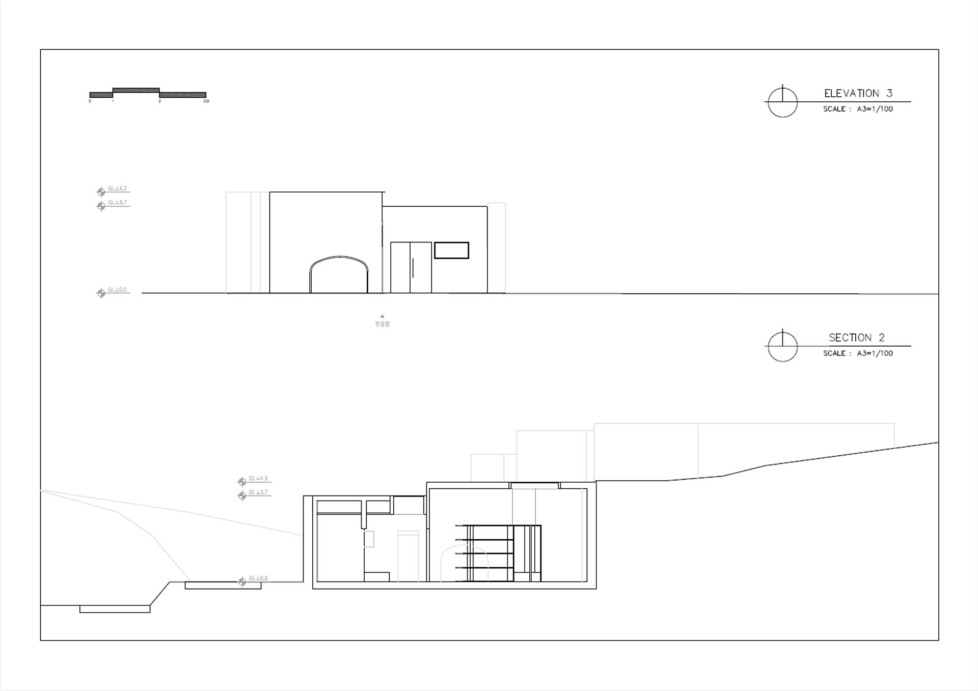
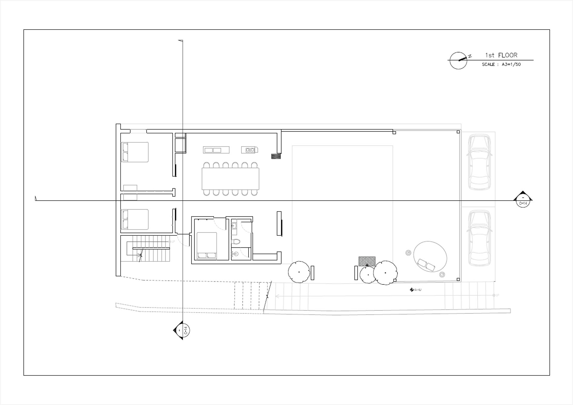
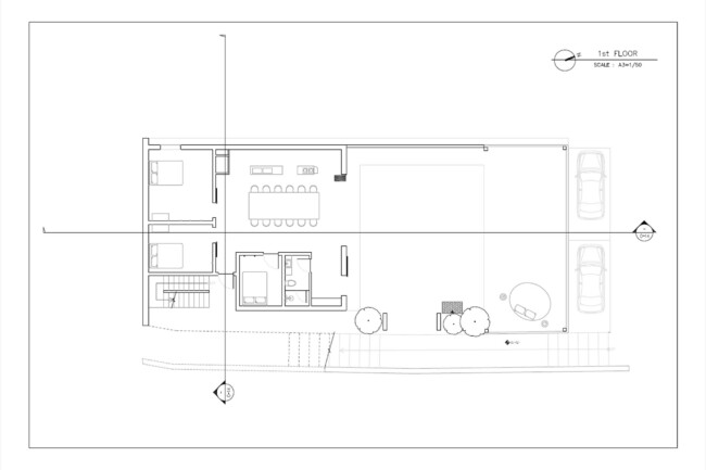
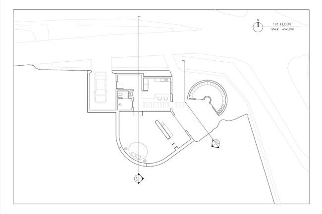
빈집을 어떻게 활용할 것인지 세컨드 하우스는 어떤  공간이여야 하는지에 관한  프로토타입을 제시한다

Galllery