나진상가, 선인상가 리노베이션 프로젝트

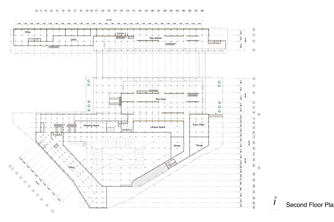
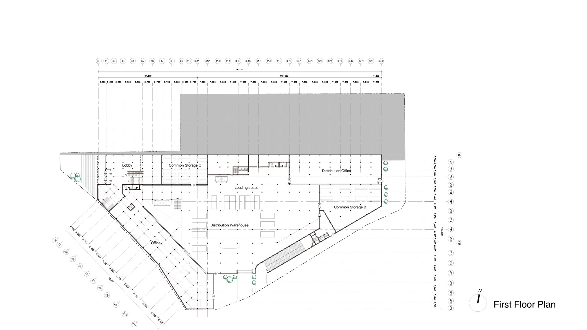
용산 전자 플랫폼

지윤태

용산 전자 플랫폼

지윤태

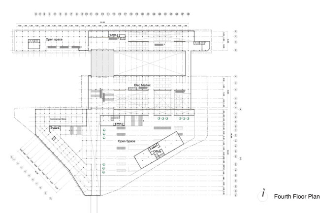
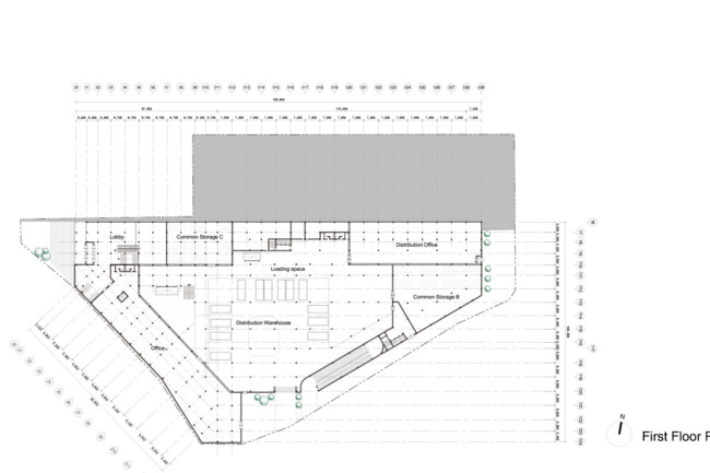
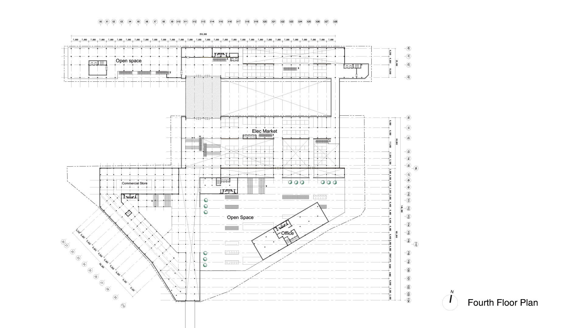
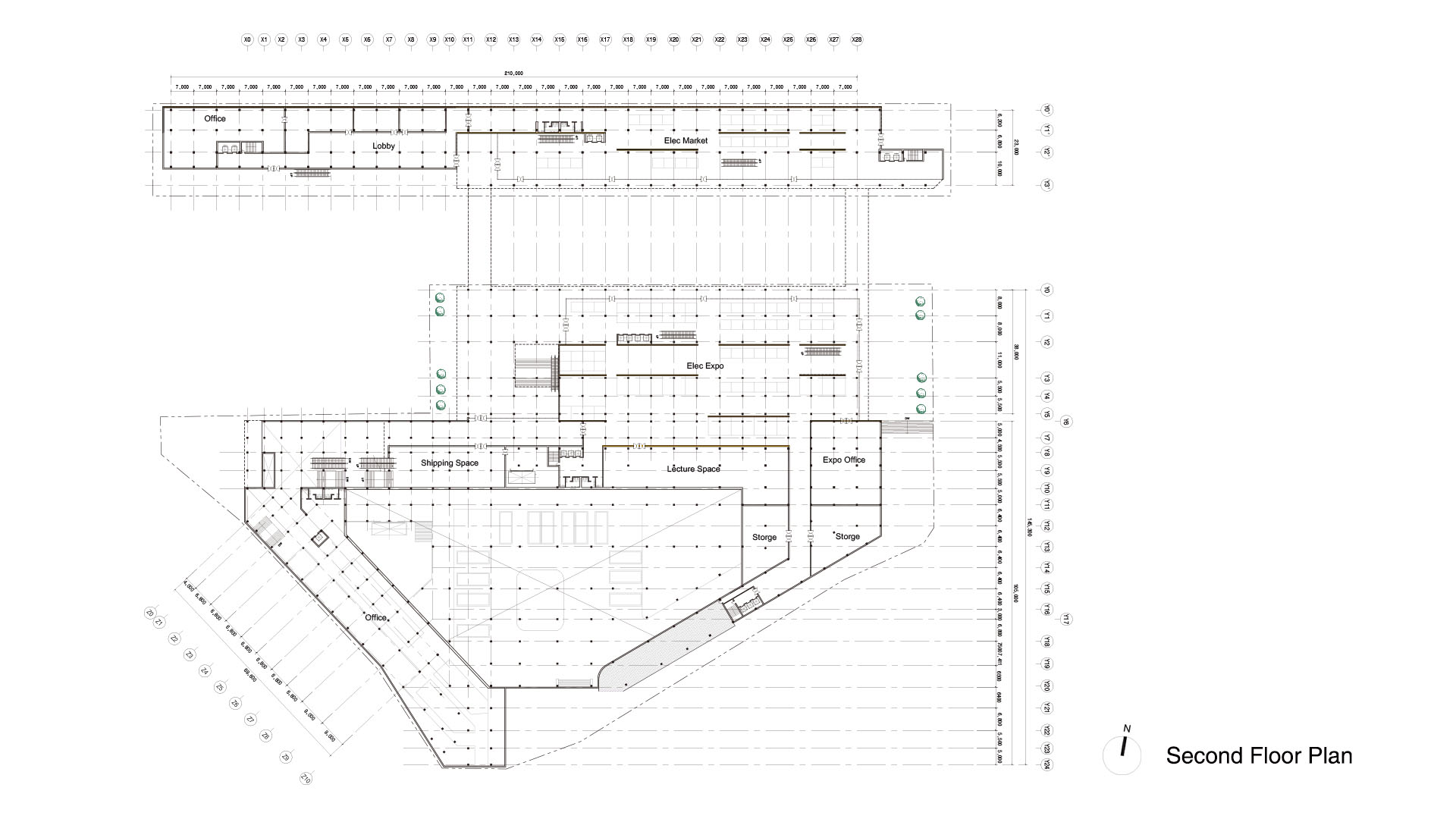
용산전자상가는 오랫동안 용산구의 대명사가 되었다.

전자제품 유통의 중심지라는 옛 기억은 유통시장구조의 변화와 전자상가의 노후화로 인해 쇠퇴의 길을 걷고있다.

과거 용산전자상가의 기억과 함께 용산역 일대가 가지는 여러가지 문제점을 담은 리노베이션을 통해 새로운 용산 전자 플랫폼을 만드려고 한다.

Galllery