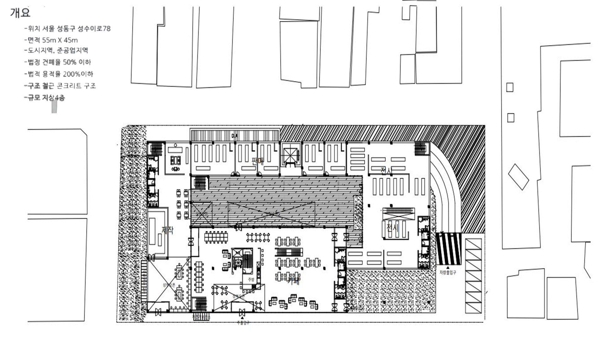
one stop plan
장근석
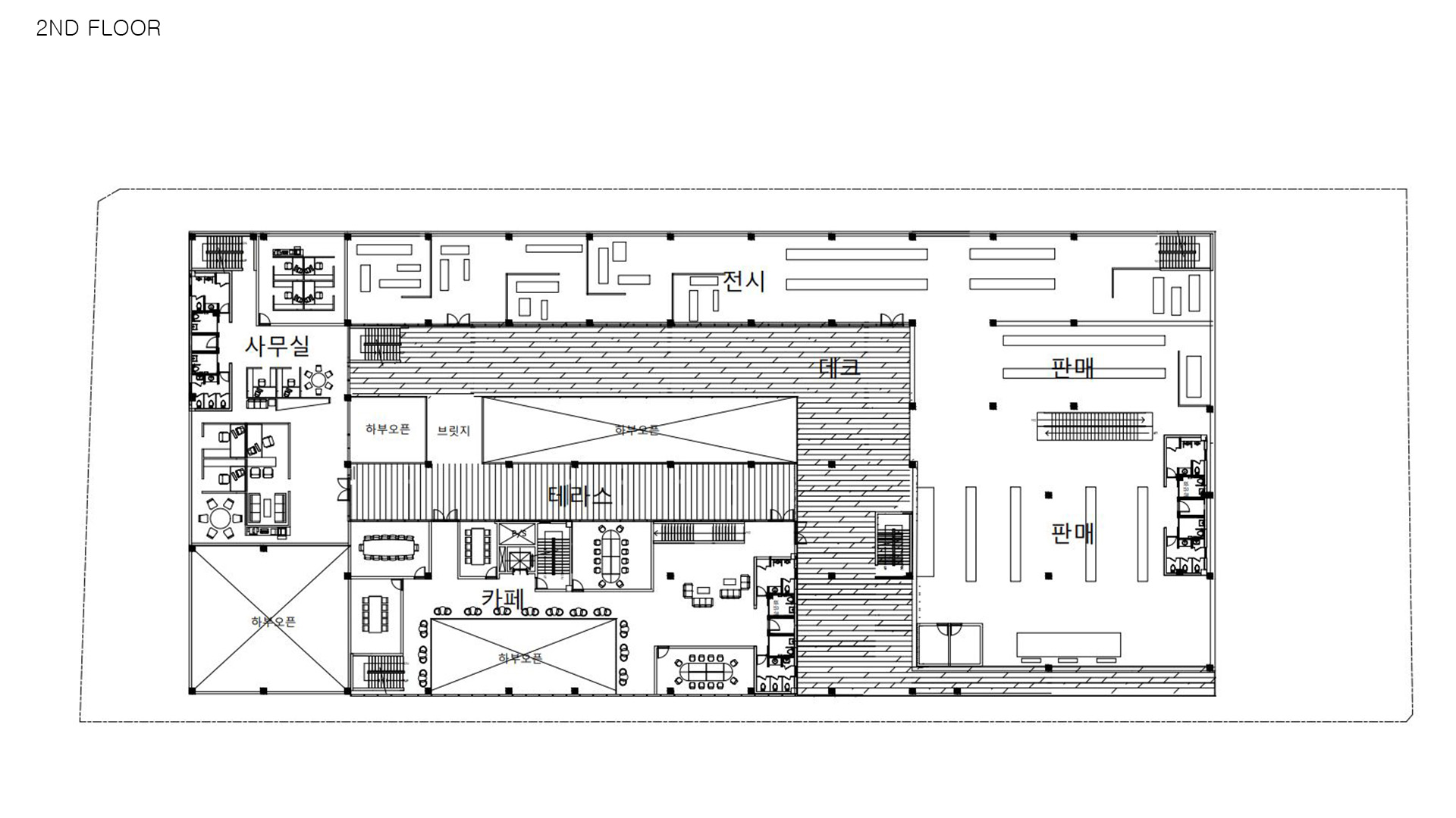
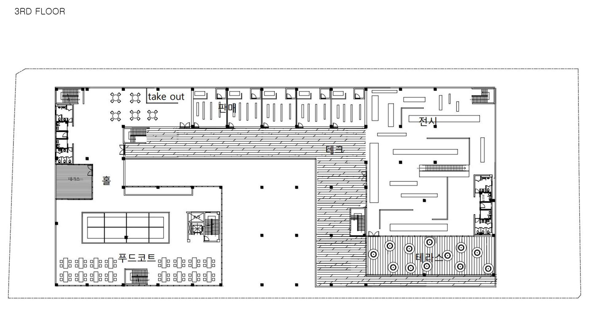
For the identity of Seongsu-dong, which is disappearing due to gentrification these days, the distribution margin is reduced as much as possible with a one-stop plan.
Therefore, it finds the identity of Seongsu-dong, which was once known as a furniture workshop and handmade shoe street, and meets the needs of people by promoting local businesses.



















