Integrated City : Prelude to Change
용산공원의 개방에 따른 도시구조 재구성 계획안
양호진 / YANG HO JIN
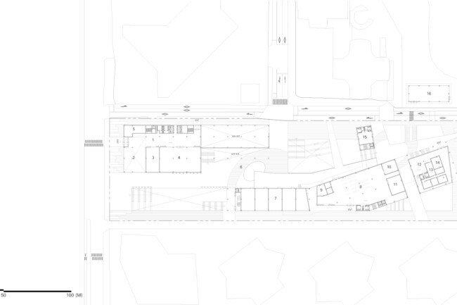
용산이라는 도시는 앞으로 큰 변화를 맞이하게 된다 오래전부터 있었던 미군기지가 이전하게 되면서 그로 인해 비워지게 된 넓은 대지는 버려진 채로 존재하다가 마침내 국가공원의 모습으로 탈바꿈하게 된다. 이러한 사실은 용산을 이전보다 더 중요한 도시로 만들 것이고 그 과정에서 기존까지 도시를 대표하고 있었던 용산역이라는 거대한 교통 인프라시설에게 새로운 역할을 요구할 것이다 하지만 용산역의 지리적 중요도와 그 기능의 활용가능성을 고려해 봤을 때 국가공원의 개방이 이루어진 후에도 여전히 도시구조 속 위계에서 중요한 위치에 있을 확률이 크다.
국가공원이라는 새로운 인프라의 등장으로 도시의 변화가 당연하게 느껴지는 현 시점에서 기존까지 그 도시를 대표하고 있었던 주요 인프라인 용산역과의 적극적인 연계가 요구된다 각 인프라시설들은 큰 규모와 영향력을 갖고 있기 때문에 어느 한 쪽으로 치우치지 않는 위계가 중요하고 이것은 자연스럽게 도시의 통합을 의미한다고 볼 수 있다.
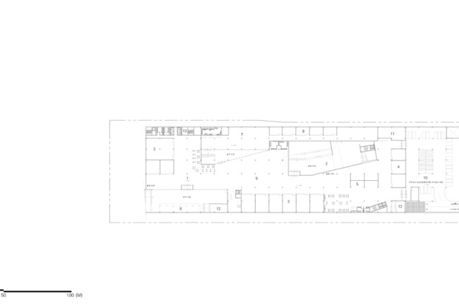
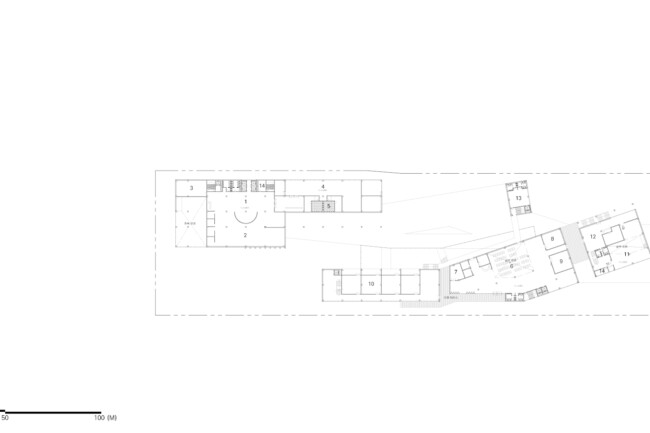
이러한 조건을 고려했을 때 두개의 인프라 사이에 위치하고 있지만 정해진 활용계획도 없이 방치되어 있었던 대상지에서 앞으로 변화하게 될 도시의 모습을 도울 수 있는 변화의 실마리와 같은 역할의 공간을 계획함으로써 동일한 위계를 기반으로 두개의 인프라를 연결하여 변화하는 도시에 가장 필요한 공간을 제안한다. 먼저 두개의 거대한 인프라시설을 연결할 수 있도록 길의 역할을 수행하는 건축적 동선을 마련하고, 이것을 기반으로 저층부에서는 도시를 구성하고 있는 사람들의 접근을 유도하는 문화공간을 제안한다 도시 구성원들의 적극적인 이용은 자연스럽게 인프라들간의 연계를 만들어내고 더 이상 그 둘을 구분 짓지 않도록 만든다 그리고 국가적으로 끊임없이 문제가 되고 있는 취업이라는 문제에 대해 이를 돕는 실용적인 프로그램들을 상층부에 제공하여 도시의 변화에 대응하는 새로운 시작이라는 의의와 더불어 갈 수 있는 공간으로서 당위성을 강하게 만들어 내고자 한다.
 
					




































