CULTURE EMISSIONS
광주광역시 상무소각장 리모델링 설계
양홍주 / YANG HONG JU
광주광역시 상무지구에 있는 상무소각장은 주민들의 반발 때문에 2016년 가동을 중지하게 되었다. 주민들에게 혐오시설로 여겨지던 소각장 건물이, 리모델링을 통해 주민들에게 문화시설을 제공하게 된다면 어떨까? 도시 미관을 해치는 유휴부지를 활용하여 주민들의 커뮤니티 중심 공간 및 문화거점 역할을 부여하고자 하였다. 연기를 배출하던 소각장 굴뚝에서, 문화를 배출하는 굴뚝으로의 변화를 꿈꾼다.
사이트인 광주광역시 서구에는 총 159개의 문화기반시설이 존재하고 있지만, 그 중 도서 시설이 88개소로 대부분을 차지하고 있었다. 그에 비해 상대적으로 공연전시시설과 문화보급전수시설은 부족한 상황이었다. 이를 보완할 수 있는 프로그램을 소각장 내에 추가하여 주민들에게 문화복지시설을 제공하는 방향으로 진행하였다.
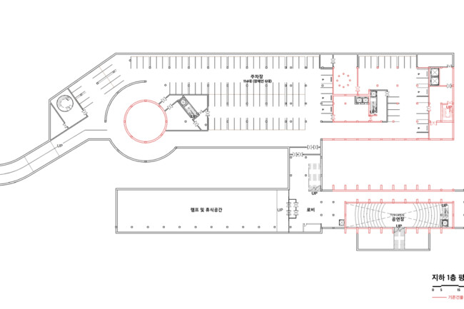
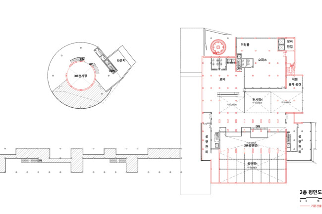
사이트 부지 내에는 공장동, 복지동, 관리동, 열원 시설이 함께 존재하고 있었지만, 상황은 모두 달랐다. 복지동은 주민들을 위한 복지시설로 쓰이고 있었고, 관리동과 열원 시설은 가동이 중지된 후 사용되지 않고 있었다. 공장동의 경우 일부 공간이 주민들을 위한 문화 공간으로 열리는 때도 있었지만, 대공간에 들어갈 새로운 프로그램이 필요한 상황이었다.
공장동의 경우 소각장 특유의 공간을 보존하고 새로운 기술을 접목한 공연전시 프로그램을 넣어 고유한 공간의 매력을 살리는 것을 목표로 설계를 진행하였다. 좁고 깊은 쓰레기 피트 공간은 수직적인 공연이 이루어지는 공간으로, 소각시설이 있던 대공간은 수평적인 공연이 이루어지는 공간으로 계획하였다. 복지동의 경우 주민들을 위한 문화보급 전수시설로 운영하고자 하였고, 열원 시설의 경우 거대한 원기둥 형태의 구조물을 남기고 전시 시설로 활용하도록 디자인하였다. 또한 혐오시설을 가리기 위해서 빽빽했던 기존의 외부 녹지 공간은 주민들을 위한 야외 시설로 탈바꿈시켰다. 야외 전시가 이루어지는 회랑과 야외 공연 공간, 그리고 수목과 함께하는 휴게 공간을 곳곳에 배치하였다.





























