Home
Home 2024
Home 2023
Home 2022
Home 2021
Home 2020
Projects
Projects 2021
Projects 2020
Workbook
Workbook 2024
Workbook 2023
Workbook 2022
Workbook 2021
Home
Home 2024
Home 2023
Home 2022
Home 2021
Home 2020
Projects
Projects 2021
Projects 2020
Workbook
Workbook 2024
Workbook 2023
Workbook 2022
Workbook 2021
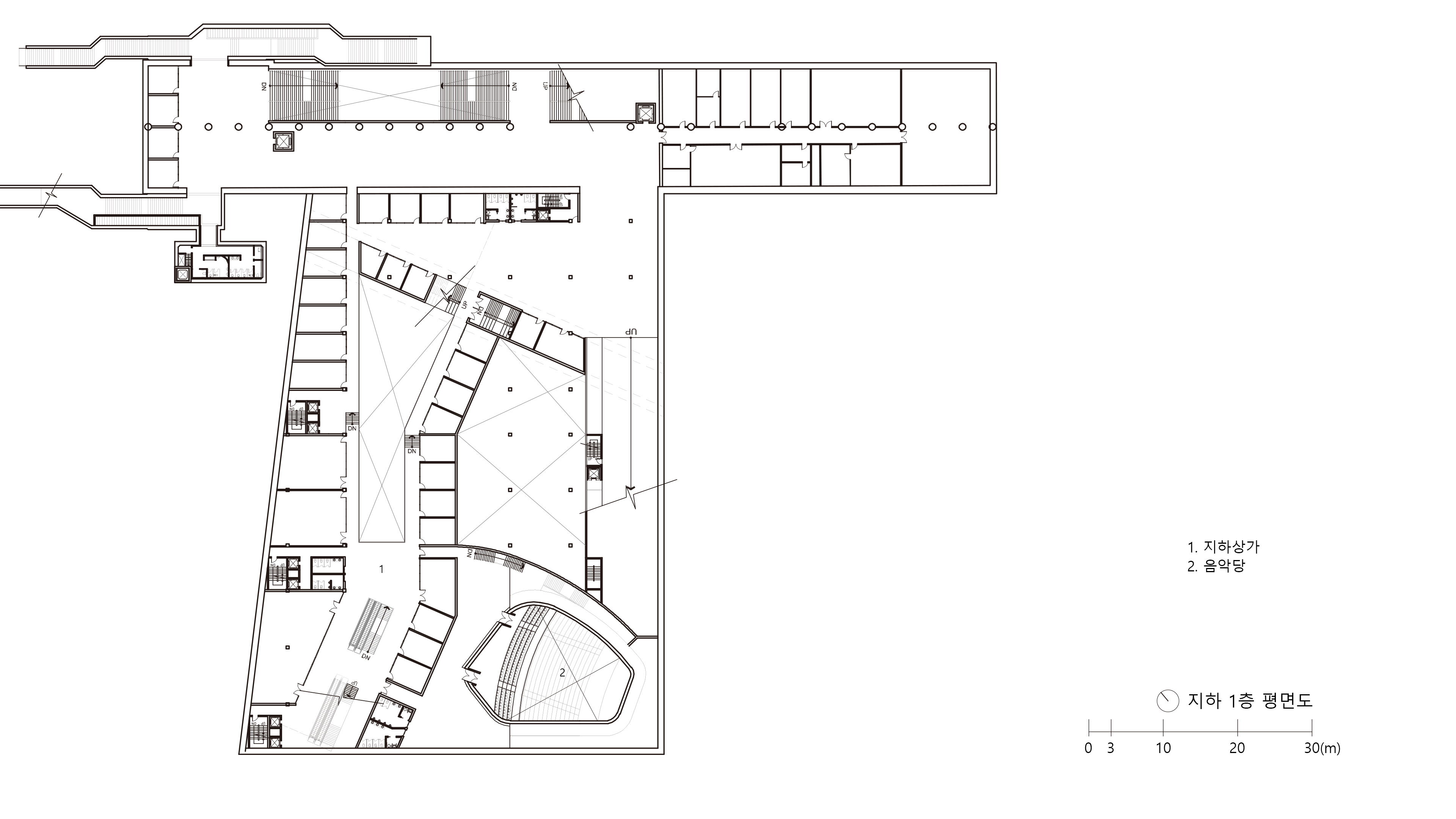
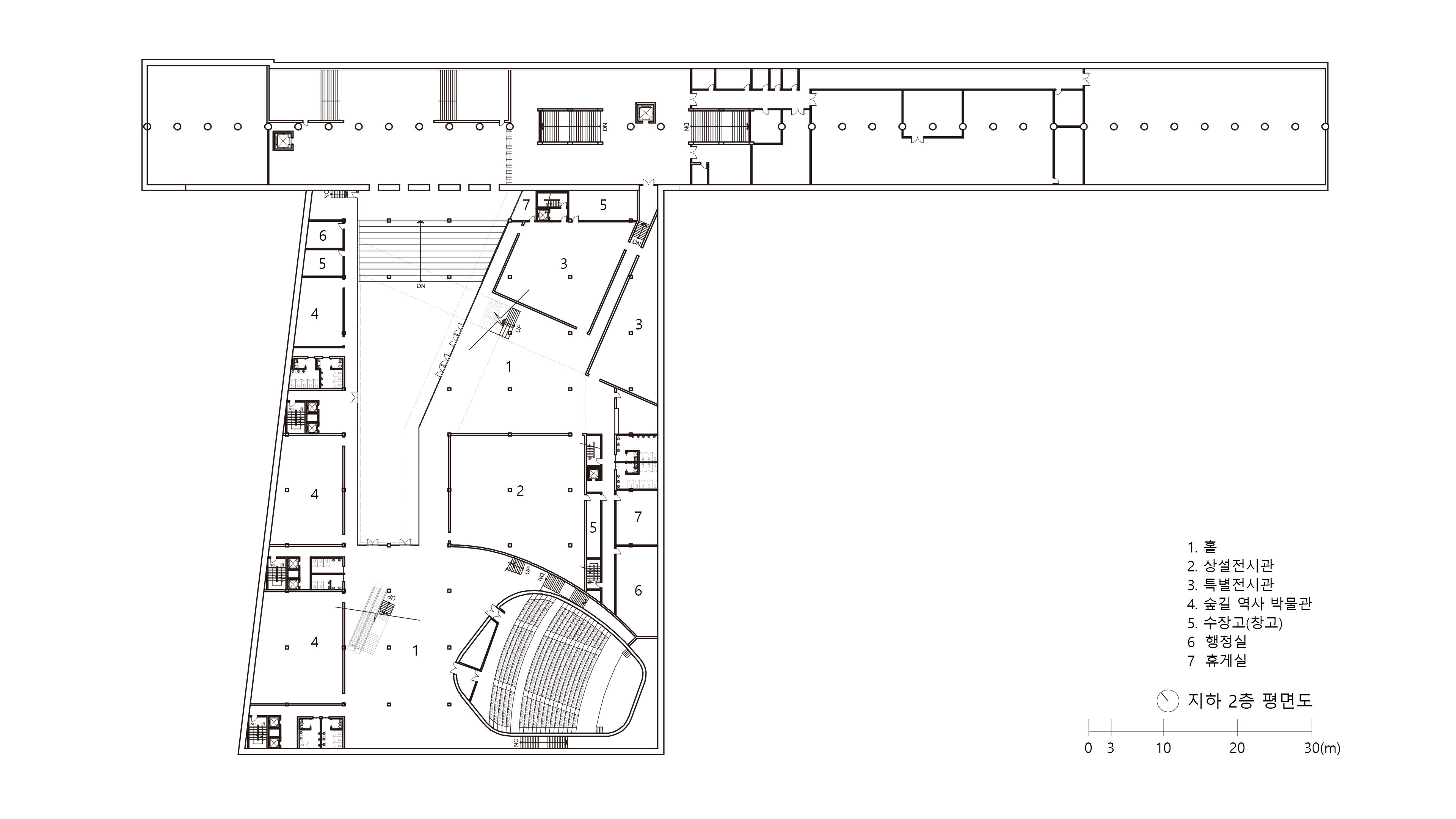
옛 철길 : 자연을 벗삼아, 지하로 스며들어
문병호
옛 철길 : 자연을 벗삼아, 지하로 스며들어
문병호
With IN.FRA_ Below The Axes
라현필
선잠단지, 고치를 풀고 나오다.
문지희
Hit enter to search or ESC to close