공유경제의 다양한 시각을 바라보게 하는 공유주거

연남동; 주거와 문화의 경계

김원태

연남동; 주거와 문화 사이의 경계

김원태

 

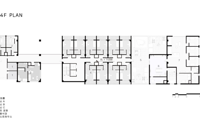
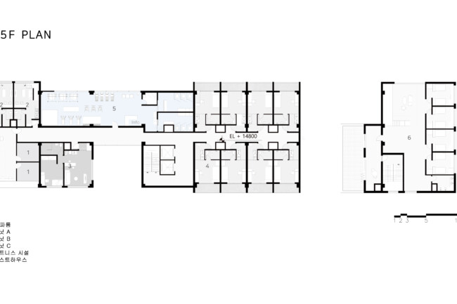
연남동은 4~5층 규모의 공동주택과

아파트로 이루어진 주거지역과 홍대상권이 이어져 올라온 활발한 상업지역,

골목 곳곳에 숨어져 있는 다양한 공방, 음식점들이 경의선 숲길 중심으로 여럿 분포하고 있습니다.

 

대상지인 동교로 225번지 일대는 경의선 숲길을 옆에 끼고 있는 연남동의 초입이자

주거지역과 상업지역의 경계선에 위치하고 있습니다.

 

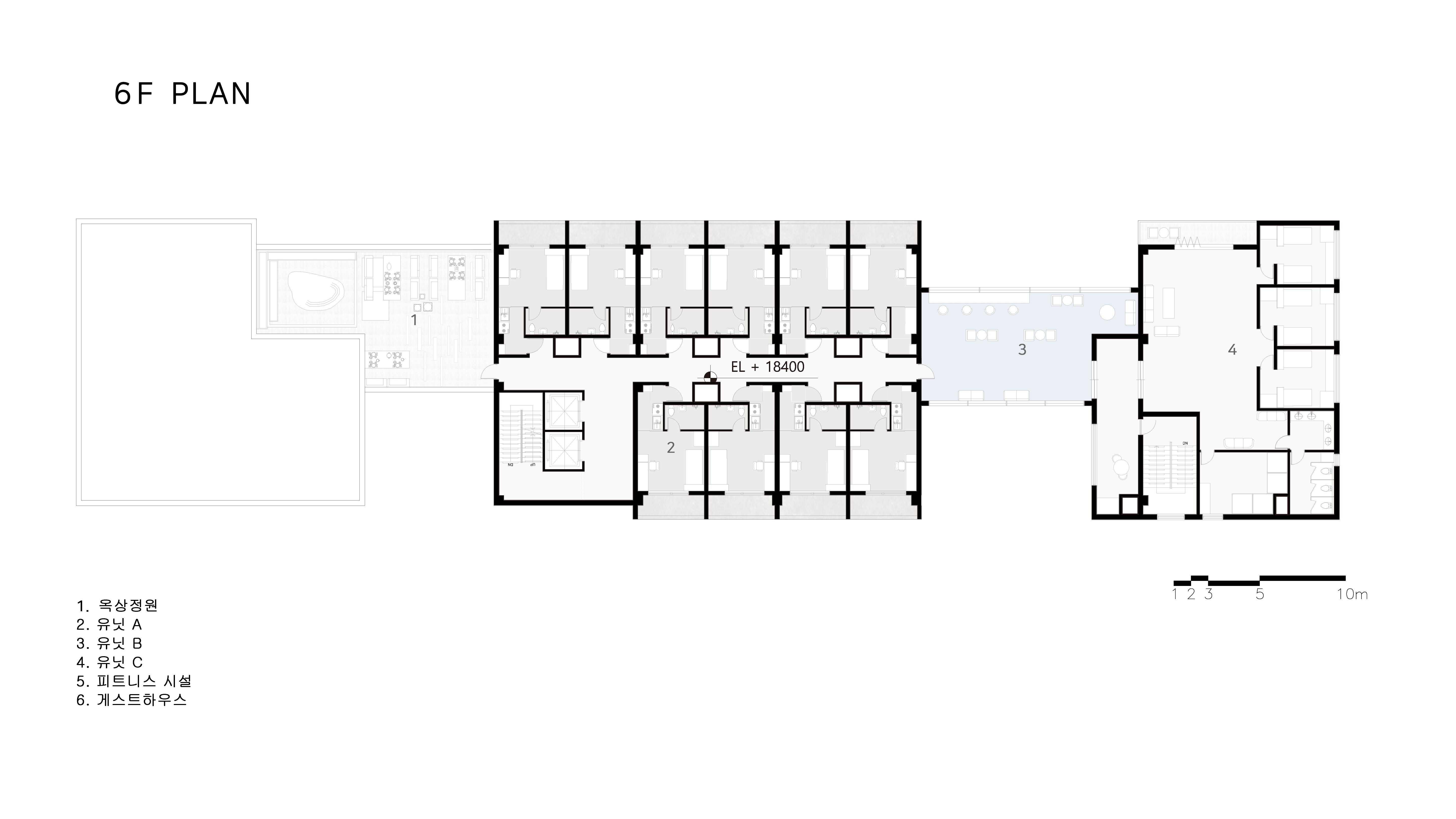
이러한 문화적 활동이 활발한 경계점에서 다양한 교류를 할 수 있는 공유주거의 형태로 사람들이 다양한 경험을 할 수  있도록 했습니다.

Galllery